Beschrijving

Royale 5-kamerwoning | Compleet gerenoveerd | Zonnig balkon(Z) | 100m² woonoppervlakte

Helemaal klaar voor nieuwe bewoners! 

Dit royale 5-kamerappartement op de 5e verdieping is recent volledig gerenoveerd en o.a. voorzien van een nieuwe keuken, nieuwe badkamer en strak afgewerkte wanden. Het gehele appartement is voorzien van PVC en voorzien van een Intercom.
U profiteert van een riante woonkamer met brede glas pui, vier grote slaapkamers, een zonnig balkon op het zuiden en een eigen (fietsen)berging. 
Gelegen in het groen van Meerzicht, op loop-/fietsafstand van winkelcentrum, Westerpark en twee Randstad Rail-haltes.

Het complex ondergaat momenteel een grondige verduurzaming en is inmiddels voorzien van een A label!
Denk aan nieuwe kunststof kozijnen met HR+++ glas en ventilatieroosters, extra dakisolatie met nieuwe bitumen dakbedekking, een CO2-gestuurd ventilatiesysteem en de sanering van asbesthoudende panelen. Ook de verwarmingsisolatie wordt verbeterd. 
Daarmee ben je straks verzekerd van een comfortabele en energiezuinige woning

Indeling

Indeling
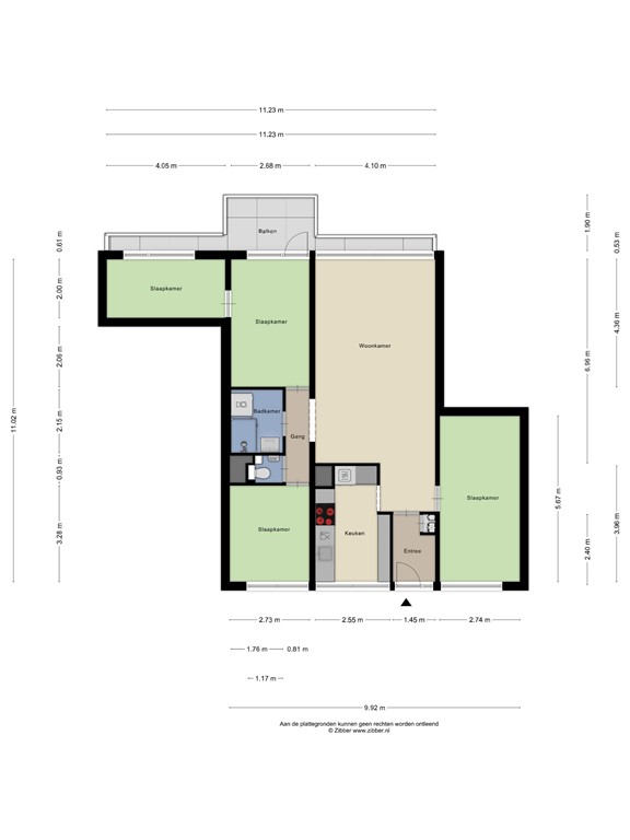
Entree, hal met meterkast en intercom.

Aan de voorzijde de dichte keuken, voorzien van o.a. inductie-kookplaat, afzuigkap, oven, magnetron en vaatwasser.

De woonkamer is ruim en licht dankzij de brede glaspui.  Vanuit de woonkamer toegang tot de hoofdslaapkamer.
Via de binnenhal bereik je de voorslaapkamer, de badkamer, wastafel en wasmachine-aansluiting, de separate toiletruimte en de achterslaapkamer. 
Vanuit deze kamer toegang tot het zuidbalkon en de slaapkamer.
Vloeren: hal/keuken/woonkamer/hoofdslaapkamer zijn voorzien van PVC.

Berging:
Eigen (fietsen)berging in de onderbouw.

VvE bijdrage € 331,31 per maand

Balkon

Ruim balkon  over de hele breedte.

Bijzonderheden

Gebruiksoppervlak Wonen 
De getoonde gebruiksoppervlakten zijn berekend conform de in de branche geldende meetinstructie.
Deze is gebaseerd op de NEN 2580. Deze meetinstructie is bedoeld om een meer eenduidige manier van meten toe te passen en het geven van een indicatie van de gebruiks - oppervlakte. De meetinstructie sluit verschillen in meetuitkomsten niet volledig uit, door bijvoorbeeld interpretatieverschillen, afrondingen of beperkingen bij het uitvoeren van de meting. 
Koper kan geen rechten ontlenen aan de opgegeven maatvoering/meetrapport. Koper wordt voor het tot stand komen van een overeenkomst in de gelegenheid gesteld de woning op te (laten) meten. 

Internet-/Brochure-informatie 
De brochure alsmede de middels internet verstrekte informatie is met de grootst mogelijke zorg samengesteld en geeft een zo duidelijk mogelijk beeld van de woning die wordt aangeboden.
Verkoper en/of verkopend makelaar geven geen garantie op volledige juistheid van deze informatie. Koper wordt nadrukkelijk in de gelegenheid gesteld de woning en apparatuur voor het tot stand komen van een overeenkomst te inspecteren op merk, type en werking.

Rechtsgeldige koopovereenkomst pas ná ondertekening 
Een mondelinge overeenstemming tussen de particuliere verkoper en de particuliere koper is niet rechtsgeldig. Met andere woorden: er is geen koop. Er is pas sprake van een rechtsgeldige koop als de particuliere verkoper en de particuliere koper de koopovereenkomst hebben ondertekend. Dit vloeit voort uit artikel 7:2 Burgerlijk Wetboek. Een bevestiging van de mondelinge overeenstemming per e-mail of een toegestuurd concept van de koopovereenkomst wordt overigens niet gezien als een ‘ondertekende koopovereenkomst’. 

Niet bewonersclausule 
In de koopovereenkomst zal een niet- bewonersclausule worden opgenomen. Er is hierdoor nog geen vragenlijst en recente VVE gegevens beschikbaar.

Kenmerken